Delivering Dignity & Hygiene: Ablution Blocks for South Sudan Refugees
Ablution Block in South Sudan
When a refugee crisis demands action, speed is critical. But preserving human dignity is equally important. This project demonstrates how we addressed both needs.
As a trusted manufacturer of prefabricated bathrooms in China, we supplied our partners in Ghana with portable, modular ablution block units. These units were assembled in Ghana and then efficiently shipped to South Sudan. There, they delivered a vital emergency sanitation container solution for those affected by the crisis.
The success of this project underscores our capability to provide durable, high-standard hygiene facilities for the world’s most demanding environments. From construction sites and mining camps to refugee camps, we are committed to one goal: using prefabricated modular buildings to deploy reliable infrastructure rapidly anywhere it’s needed. Our solutions aren’t just built to meet tough conditions; they’re designed to exceed them.
| PPRJECT INFORMATION | PROJECT PERFORMANCE |
| Client: Prefab Modular Container Supplier in Ghana | Key Outcomes: Provide safe and private sanitation facilities for South Sudan refugees |
| Project Scope: • Supply of 17 portable, modular ablution blocks. • Services included design, manufacturing, and logistics support from China to Ghana. | Key Achievements: • Successfully completed logistics and final delivery integration in Ghana. • Ensured all units arrived fully functional without any major malfunctions. |
| Core Challenges: • Use materials adapted to the climates of South Sudan • Ensure rapid installation to meet project deadlines | Quality & Compliance: • All products meet quality standards • Ensure low maintenance costs and long service life. |
| Quantity: 17 Sets of Ablution Block | Progress and Customer Feedback: Installation finished, customer satisfaction 100% |
The above provides a general overview of the project. Next, we will analyze the challenges, core requirements, and solutions of this case in detail.
Providing sanitation containers for refugees: 17 container ablutions delivered within 4 weeks
Project Background
A client in Ghana needed a durable and easy-to-install ablution block for refugees in South Sudan. The facility had to include toilets, showers, hand-washing areas, and a changing room. Because the project is located in a conflict zone in South Sudan, and far from major cities, how to transport, where to install them, and long-term maintenance were critical concerns.
The main project objectives included:
- Providing safe and hygienic sanitation facilities for refugees
- Ensuring quick installation to meet project deadlines
- Easy transporation and ensure the ablution block arrive safely and undamaged during transport from Ghana to South Sudan.
- Using materials resistant to Ghana and South Sudan’s climate
- Designing for low maintenance and long service life
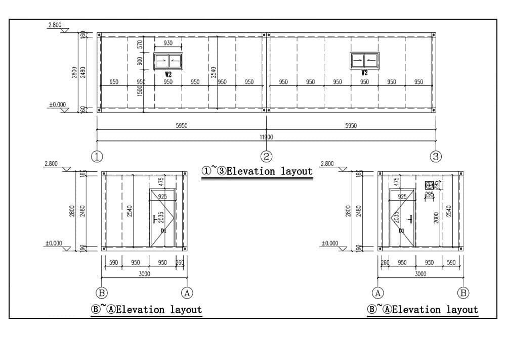
Container ablution design layout
A successful container ablution design begins by considering the usage scenario, local climate, and long-term maintenance costs. First and foremost, this plan ensures separate male and female sections and user privacy. Furthermore, it significantly enhances the safety and durability of the facilities. By using sturdy, low-maintenance materials and structures, the design adapts flexibly to diverse needs. Ultimately, this approach guarantees long-term operation and improves the user experience throughout the entire lifecycle. Here is the drawing of ablution block:
Below is k-home’s layout design, based on durability, safety, and comfort in actual use:
- Layout Design: The ablution block includes: Male and female areas, Toilet cubicles, Shower rooms, Urinals, Sink, Washing machine, and Changing rooms. K-HOME uses modular structures of ablution block that can be expanded or reduced depending on the client’s needs.
- Structural Material: We use detachable containers to build our toilet & shower blocks. To withstand Ghana and South Sudan’s climate, Khome uses: Hot-dip Galvanized steel frame with spraying plastics, Fire-resistant rock wool sandwich panels, Anti-slip waterproof flooring(18mm cement board + aluminum sheet), Rust-proof aluminum doors, and PVC or stainless-steel fittings. These materials ensure 10–20 years of service life with minimal maintenance.
- floor structure- Hot-dip Galvanized steel frame
- 18mm cement board
- Anti-slip waterproof flooring(18mm cement board + aluminum sheet)
- Fire-resistant rock wool sandwich panels
- Hot-dip Galvanized steel frame with spraying plastics
- install Fire-resistant rock wool sandwich panels
- Ventilation and Lighting: Ghana and South Sudan’s climate is warm and humid, and in order to keep air fresh in ablution block so proper ventilation is essential. KHOME ensures: Optional exhaust fans, frosted glass windows and LED moisture-proof lighting Good ventilation reduces odor, mold, and bacterial growth.
- Ventilation
- Ventilation
- Ablution Block with one door and two windows
Project Challenges | Professional installation team solutions
During the early stages, since the ablution block are ultimately intended for use in conflict-ridden South Sudan, our main challenge was how to install them in Ghana and ensure their safe and undamaged transport through several countries to South Sudan. Below is how Khome typically resolves them.
Installing this bathroom is a complex process that includes: how to connect two 20-foot container units, the installation and fixing of the toilet and shower partition, and the installation and fixing of the toilet, urinal, sink, and shower tray.
Because our client lacked installation experience, we commissioned an agent in Ethiopia to provide the installation services.
Therefore, you don’t need to worry about the complex installation process.
K-HOME provides full-service professional installation support from design to completion. Our experienced project team can directly oversee all construction phases, including foundation work, plumbing, and main steel structure, ensuring your project is executed precisely and providing you with a worry-free turnkey solution.
Based on communication with the client and our installation team in Africa, our solutions are as follows:
1. For the connection between the two container units, to prevent loosening during transportation, we advised the client to install accessories and reinforcements at the connection point in South Sudan. Our installation team in Africa provided advance training to the client’s installation workers on how to install the accessories and reinforcements at the connection point.
2. For the installation and fixing of the toilet and shower partitions, we extended the partition length during production, directly fixing the partition to the roof of the container unit. The roof and floor hinges are made of stronger stainless steel, as shown in the image below.
3. The toilet, urinal, sink, and shower tray were also installed in South Sudan, and sufficient adhesive was provided for their fixation.
Transportation and Assembly of Container ablutions
Our assembled container toilets are prefabricated in factories. They are delivered to your construction site by shipping containers. These containers are packed in bulk and installed on-site. This method of transportation avoids damage to container houses during transportation. And saving customers a lot of transportation costs. One 40HQ container can load 11 standard-sized container houses.
Our prefab container ablutions are detachable. All components do not need to be welded, just bolted together. This installation method usually takes only a short time to complete the installation, saving manpower and construction costs, and meeting the needs of rapid deployment.
Packing and transportation
how to install a 20ft container van house ?
Key Considerations When Building an Ablution Block
To build a long-lasting and hygienic ablution block in Ghana and South Sudan, clients should pay attention to the following points:
Pick a Good Location:
- Away from sleeping quarters
- Not prone to flooding
- With easy access to water and power
- Downwind to reduce odor exposure
Choose Durable Materials
Moisture, heat, and salt air can damage poor-quality structures.
Khome uses corrosion-resistant materials specifically selected for African climates, such as Hot-dip Galvanized steel frame with spraying plastics, Fire-resistant rock wool sandwich panels, Anti-slip waterproof flooring(18mm cement board + aluminum sheet), Rust-proof aluminum doorsand PVC or stainless-steel fittings.
Foundation Options for Ablution Blocks
There are three foundation options for container houses. Considering the need for rapid installation in Sudan, we chose to use Dot Pillars S foundation, which allow for quick construction.
- Recommend – Dot Pillar foundation
- Recommend – Foundation Solution-Dot Pillars
- Foundation Solution-Strip
- Foundation Solution-All Hardened
Water Pipe Layout for Ablution Blocks
To ensure hygiene and reduce water waste, the water system must be planned carefully. We usually use two types of pipe layouts:
One is for the first floor without raised floor
This solution for the first floor without raised floor. This foundation construction is relatively simple and cost-effective.
One is for the first and second floors, requiring raised floor
This type is a little expensive, and we only recommend using it if your building has a public Ablution Block on the second floor.
Why Choose Khome for Your Ablution Block in Africa?
Many clients in Africa choose Khome for the following reasons:
Reasonable and moderate price
Our price is reasonable and moderate, the profit of this industry is relatively transparent, as we know, the price doesn’t only mean the good cost, it comes with a lot of service, like free professional design, good quality, delivery on time, installation guide, flexible payment term and after self-service. We should keep certain profit to ensure the business well and make sure the safety of capital of every customers.
Professional Design and Development team
Our team has more than 10 years experience,
we not only design professional drawings and solutons to help the customer save the cost, but also we can keep updating the goods to meet customers’s needs and bring better experience.
Strong Experience in African Projects
Khome has delivered ablution blocks to: Congo, Ghana, Nigeria, Kenya, Ethiopia, Mozambique, Botswana, Tanzania Sierra Leone, Zambia, South Africa and etc. We know their needs well, so you can free from worry.
Fast Production and Delivery
We have a complete supply chain and skilled workers. Our monthly output is around 2000 sets. If your order is large and urgent, we can also integrate with nearby professional production lines to complete your order on time, with high quality, and in the required quantity.
Installation
We have a professional installation team in Africa, They can provide full installation services nearby, including foundation work, and no language barrier, so you can save the cost. If you require installation tools, our installation team can also provide them.
K-HOME Container Ablution Supplier
As a professional Prefab Container manufacturer, K-HOME is committed to providing you with safe & efficient container ablution solutions.
At K-HOME, we pride ourselves on being a premier ablution container supplier that places quality at the forefront of everything we do. From the very inception of our containers to their final installation, we meticulously curate every aspect, ensuring that our homes exceed the industry’s highest benchmarks for durability, safety, and sustainability. We guarantee that each K-HOME prefab container is built to last, withstanding the test of time and the elements.
Committed to Creative Problem Solving
We tailor each modular building to your needs with the most professional, efficient and economical design.
Buy direct from the manufacturer
Modular container buildings come from the source factory, carefully selected high-quality materials to ensure quality and durability. Factory direct delivery allows you to get accommodation containers at the best price.
Customer-centric service concept
We always work with customers with a people-oriented concept to understand not only what they want to build, but also what they want to achieve.
Comprehensive Certifications
We uphold the highest standards. Behind every building is a rigorous commitment to safety, quality, and sustainability, backed by dozens of internationally recognized certifications.
Related Project
Related Articles
SEND A MESSAGE